top of page
serviceflat-gierle-turnhout-studioap-interiorarchitects-totalrenovation-design-lightning

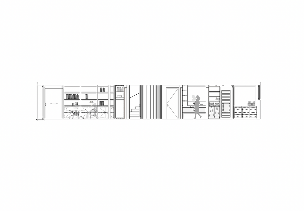
PROJECT SH

SERVICEFLAT 

TOTAL RENOVATION

GIERLE


2023-2024

 

bottom of page